Brinkweg 9, Hilversum

Prijs  € 1.700 p.m. ex.

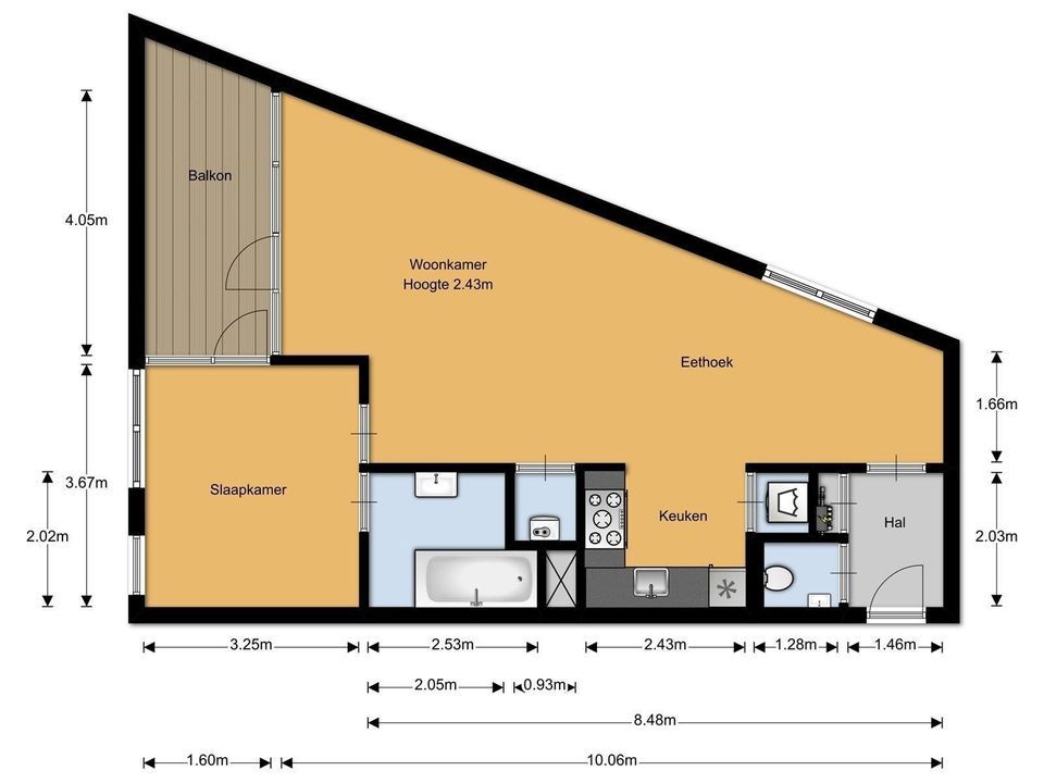
Read more about this property

If you would like more information about this property or wish to request a viewing, you can register with Brick Brokers via the ‘register’ button above.

Location

[ { "address": "Brinkweg 9", "zipCode": "1211RP", "city": "Hilversum", "lat": 52.223283, "lng": 5.1712653, "heading": 0, "pitch": 0 } ]

Related houses